Забудовник "Ріхерт&Парк" обіцяє створити на Подолі нову зелену зону вартістю понад 40 млн грн
Фото: facebook.com/PodilRDA
Компанія "А Девелопмент", що є забудовником ЖК "Ріхерт&Парк" на місці колишнього пивного заводу Ріхтера, планує інвестувати понад 40 млн грн у створення нового парку на Подолі.
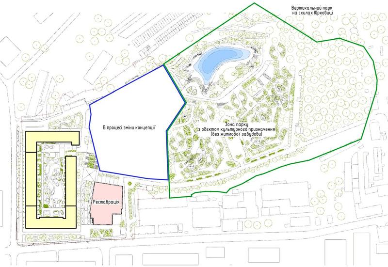
У компанії кажуть, що зменшать площу забудови майже на 40 000 квадратних метрів, а на ділянці, що звільниться, облаштують парк площею близько шести гектарів із культурно-спортивним центром.
Це буде "вертикальний" громадський парк на схилах Юрковиці з прогулянковими зонами та оглядовими терасами. Його передадуть на балансі КО "Київзеленбуд" для догляду, збереження та розвитку зеленої зони для громади. Проєкт парку передбачатиме інвестиції у розмірі понад 40 млн грн.
Зобов'язання девелопера зафіксують у меморандумі з містом в особі Подільської РДА. Зокрема компанія зобов'яжеться:
- дотримуватись обмежень висотності проєкту, узгоджених із місцевими жителями під час громадських слухань;
- інвестувати 40 млн грн в реновацію школи, яку обрала місцева громада;
- профінансувати меценатський проєкт зі створення громадського парку в ареалі схилів гори Юрковиця;
- відреставрувати пам'ятки архітектури щодо яких забудовник підписав охоронні договори;
- провести благоустрій прилеглої до будівництва території.

До підписання меморандуму забудовник планує відновити будівельні роботи на чергах, де висота будинків не перевищує 27 метрів. Щодо них компанія має повний пакет дозвільної документації. Паралельно триватимуть роботи з реставрації пам'яток архітектури — споруд колишнього пивзаводу Ріхтера.
Зазначимо, що столичні активісти та місцеві жителі виступають проти будівництва "Ріхерт&Парк". Натомість вони вимагають створити на території гори Юрковиця національний парк. Нещодавно президент Володимир Зеленський підтримав відповідну петицію, яка зібрала понад 25 тисяч підписів.